Il progetto Restaurant | 01 nasce dall’esigenza della committenza di rifunzionalizzare l’area ristorante all’interno di un noto complesso alberghiero sito a Napoli, in Italia.
L’approccio iniziale al progetto è stato quello di analizzare più a larga scala i flussi presenti al piano.
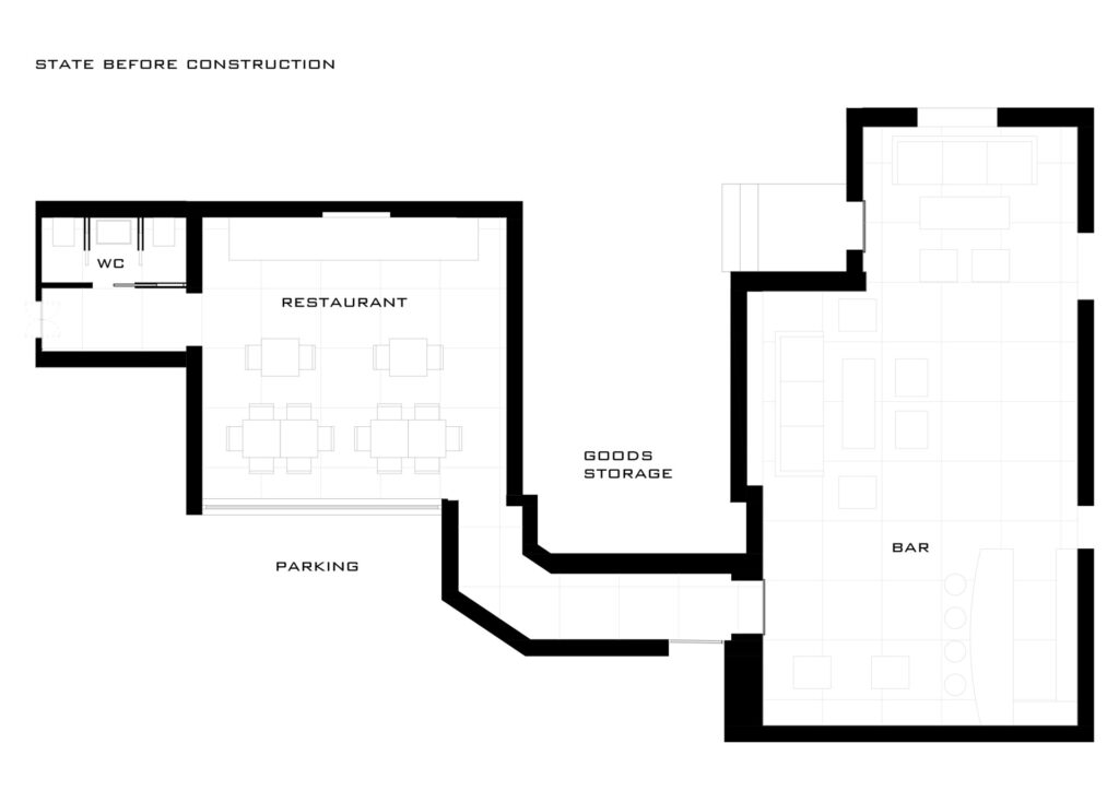
Lo stato di fatto, presentava la sala ristoro parzialmente aperta verso l’area parcheggio, favorendo poco la vista, e completamente sconnessa dalla restante parte del complesso alberghiero.
Attraverso la demolizione di un muro, è stato possibile aprire la sala ristoro proiettandola verso l’esterno e trasformando lo spazio residuale in un patio, prima utilizzato come deposito merci, favorendo dunque anche il collegamento direttamente del ristorante al vicino bar. Il patio dunque, diventa oltre che elemento di connessione, anche rifunzionalizzazione di uno spazio prima inutilizzato, inteso come una stanza all’aperto proiettata verso il cielo.
Il secondo approccio al progetto è stato quello di intendere lo spazio come un unico grande blocco di marmo da scavare da cui prendono vita diversi elementi in particolare la pavimentazione ed i tavoli in travertino, intesi come elementi residuali delle operazioni di scavo. Gli inserti in legno a pavimento collegano invece i diversi passaggi e flussi all’interno del locale. La sala ristoro, si collega direttamente al patio esterno attraverso una grande vetrata al cui interno sono incastonati tre elementi in legno e travertino che diventano elementi di arredo a servizio dei tavoli sia interni che esterni. Lungo le pareti del ristorante, un vibrato di legno in noce canaletto arreda lo spazio, donando la sensazione di accoglienza e riposo.
Completano lo spazio alcune icone di design italiano come la sedia “Miss” di Tobia Scarpa, e le lampade da tavolo “TeTaTeT” di Davide Groppi.
In ultimo, il patio esterno, interamente rivestito in travertino, configura uno spazio inteso come una stanza aperta verso il cielo. I tavoli realizzati in marmo travertino diventano a loro volta delle lampade che illuminano e danno vita lo spazio circostante.
Forme essenziali e contrasti materici ridisegnano lo spazio della convivialità.